IDÉAL POUR LES 50 ANS et PLUS
Phase 1, 487 rue Castonguay, St-Jérôme
Phase 2, 286 rue Pelletier, St-Jérôme

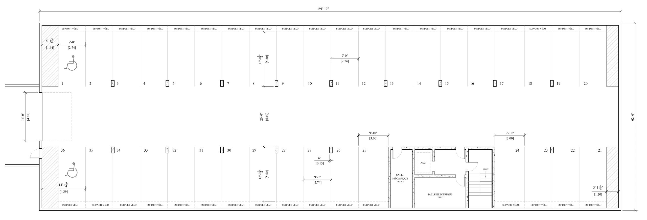
Idéal pour les 50 ans et plus. Le projet est composé de vastes condos luxueux dans deux multiplex de 36 unités chacun dans un secteur paisible de Saint-Jérôme. Ce projet exceptionnel est à proximité des restaurants, hôpital, autoroute 15 et les grandes surfaces, vous offrant une qualité de vie idéale. Que votre choix s’arrête sur un 3 ½ ou un 4 ½, deux stationnements, un à l'intérieur du garage chauffé et un à l'extérieur sont compris dans la location; un avantage de choix quand vient le temps de choisir votre condo locatif.
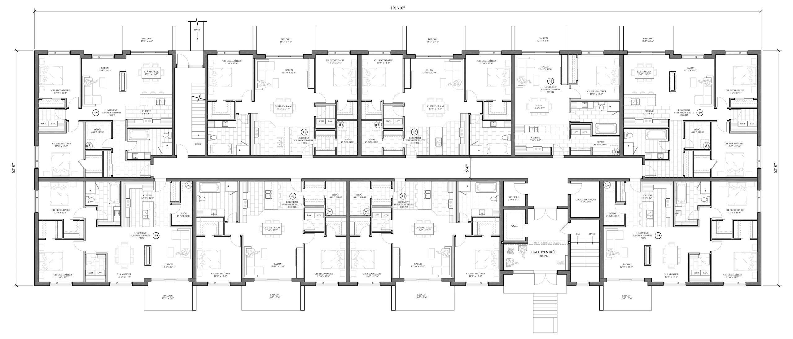
La conception et l’architecture ont été pensées pour ceux qui apprécient le confort, l’élégance et les grands espaces de vie. Nos unités spacieuses de 800 à 1 200 pieds carrés offrent un maximum de luminosité grâce à la fenestration abondante et de grande dimension. Épuré et remarquable en raison de son architecture contemporaine unique, le projet a été judicieusement réfléchi pour apporter aux futurs locataires l’expérience de la vie de condo à son meilleur!
Voici un aperçu de tous les avantages et inclusions qu’offre le projet: Les Condos de la Cité :
Vous êtes intéressé? N'hésitez pas à nous contacter afin de planifier une rencontre et de pouvoir vous offrir le maximum de détails sur notre superbe projet.

Nos spacieux 4 1/2 avec foyer électrique de 60 pouces. Unité de centre de 1118 pieds carrés

Nos spacieux 4 1/2 avec foyer électrique de 60 pouces. Unité de coin de 1170 pieds carrés

Nos spacieux 4 1/2 avec foyer électrique de 60 pouces. Unité de coin de 1200 pieds carrés

Nos spacieux 3 1/2 avec foyer électrique de 60 pouces! Bain et douche séparé ainsi que le plancher chauffant.




Nous sommes très contents de rencontrer nos clients. Prenez rendez-vous et il nous fera plaisir de vous présenter notre projet ainsi que vous fournir plus de détails sur les différents types de logements, grandeur et autres.
286 Rue Pelletier, Saint-Jérôme, Quebec J7Y 2K1, Canada
7 jours/semaine! Sur rendez-vous SEULEMENT.
